|
HAUS BUCK HAMBURG
NEUBAU EINES EINFAMILIENHAUSES
 |
 |
| BAUHERR: |
Georg Buck |
| BAUJAHR: |
1995 - 1996 |
| STANDORT: |
Alte Landstraße 60, 22339 Hamburg |
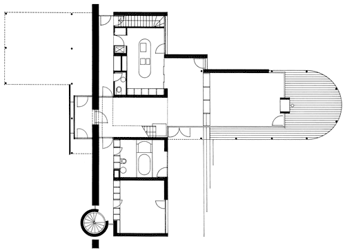
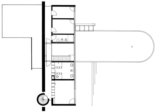
Das Entwurfskonzept für das
Haus Buck wurde aus der städtebaulichen Situation, bedingt durch die
Lage zwischen der stark befahrenen Alten Landstraße und dem Naturschutzgebiet
des Alstertales, entwickelt. Das Grundstück besitzt einen wertvollen
Baumbestand und fällt von der Straße zum Alstertal hin stark ab. Um
dieser anspruchsvollen Situation gerecht zu werden, sah das Konzept
für das Einfamilienhaus eine räumlich gestaffelte Bebauung vor, die
sich von einer lärmschützenden zweigeschossigen Mauerscheibe entlang
der Straße über die Schlaf- und Nutzbereiche hin zum Wohntrakt aufgliedert.
Dementsprechend gestaltete sich das Hauskonzept als eine T-förmige
Figur mit einem in der Straßenflucht liegenden Bauteil und einem winkelförmig
dazu in den Garten reichenden Wohnbereich mitsamt vorgelagerter, überdeckter
Terrasse. Außenräumlich erhält dieser Bauteil seine Fassung durch
den vorhandenen Baumbestand.
Als Einfamilienhaus für eine
vierköpfige Familie geplant, berücksichtigt der Entwurf die individuellen
Bedürfnisse des Bauherren. Die beiden Kinder der Familie hatten während
der Bauplanung gerade mit dem Studium begonnen, weshalb die Kinderschlafzimmer
derart ausgelegt wurden, daß sie nach einem Auszug der Kinder als
Gästezimmer genutzt werden können. Folglich wurde auf eine räumliche
Separierung der Schlafbereiche geachtet, die in dem straßenbegleitenden,
zweigeschossigen Bauteil untergebracht sind. Entlang der geschlossenen
Mauerscheibe zur Straße befindet sich in beiden Geschossen ein Flur,
über den der Küchen- und der Gästebereich im Erdgeschoß sowie die
Schlafräume im Obergeschoß erschlossen werden. Ein eingehängtes Brückenelement
aus Stahl verbindet dabei im Obergeschoß den Elternschlafbereich mit
jenem der Kinder, wodurch die erwünschte räumliche Abgrenzung gewährleistet
ist.

Entwurfsskizze
Eine
zweigeschossige Eingangshalle bildet den Erschließungskern des Einfamilienhauses
und empfängt Gäste des Hauses mit einer unerwarteten, räumlich artikulierten
Weite. Eine filigrane Stahltreppe verbindet die Eingangshalle mit
dem Obergeschoß. Von der Eingangshalle aus entwickelt sich der Wohntrakt
als eine Abfolge von Raumbereichen, die sich durch ihre unterschiedlichen
Raumhöhen, differenzierte Belichtungssituationen und die immer stärkere
Auflösung der Raumgrenzen zum Naturraum des Alstertales hin auszeichnen.
Ein Wechselspiel von verglasten und geschlossenen Wänden des Wohnbereichs
schafft dabei eine angenehme Behaglichkeit. Insbesondere der zentral
platzierte Kamin sorgt an der Raumgrenze zur überdeckten Terrasse
für eine räumliche Atmosphäre, die dem klar und offen konzipierten
Wohnbereich dennoch seine individuelle Privatheit garantiert.
Fotos: Oliver Heissner, Gerd von Bassewitz
|