|
HAUS IVERSEN HAMBURG
UMBAU UND ERWEITERUNG EINES EINFAMILIENHAUSES
 |
 |
| BAUHERR: |
Till Iversen |
| BAUJAHR: |
2000 - 2002 |
| STANDORT: |
Bei der Flottbeker Kirche 5, 22607 Hamburg |
Das Haus Iversen, ein Jugendstilbau
von 1911, wurde um einen neuen Wohnbereich ergänzt, der mit dem Altbau
ein Ensemble bildet, in dem beide Bauteile ihre individuelle Figur
bewahren. Ein zwischen den Bauten verlaufender Flur fungiert als Fuge,
die architektonisch trennt, aber funktional verbindet. Durch pointiert
gesetzte Blickachsen ist der Neubau mit den bestehenden Raumbereichen
verknüpft. Der markante Hausgiebel wird durch den flachgedeckten Neubau
weithin sichtbar belassen.
  |
  |
  |
 |
| Nord-Ost |
Süd-Ost |
Süd-West |
Nord-West |
Als Kontrapunkt zur kompakten
Baumasse des Altbaus besteht der Neubau im Wesentlichen aus drei Scheiben,
die durch ihre farbliche Differenzierung Prägnanz gewinnen. Diese
Scheiben bilden ein offenes Raumgebilde, das von einem mittig in der
verglasten Gartenfront plazierten Kamin optisch verklammert wird.
Durch diese offene Struktur entsteht ein fließendes Raumkontinuum.
Schmale Fugen und Überkragungen lassen die drei Scheiben als Komposition
wirken, die an Vorbilder der De Stijl-Bewegung erinnert.
 |

 |
 |
 |
 |
|
Grundriss Kellergeschoss |
|
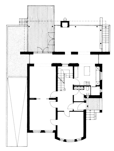
Grundriss Erdgeschoss |
|
Der Garten wird durch die Verglasung
der Westfassade als räumlicher Bestandteil des Neubaus einbezogen.
Durchgänge in der Rückwand und der asymmetrisch plazierte Kamin verleihen
dem Wohnraum ein Wechselspiel von Weite und Enge, das der simplen
Konzeption eine detailreiche räumliche Artikulation verschafft. Eine
vorgelagerte Terrasse bildet dabei einen differenzierten Übergang
zum Außenraum. Im Untergeschoß liegt ein Schwimmbad, in dem dezent
angebrachte Oberlichter ein intimes Badeerlebnis gewähren.
Während
der Altbau in gewohnter Funktion und Erscheinung verbleibt, erweitert
der Neubau die räumlichen Möglichkeiten des Wohnhauses. Trotz weitgehender
Verglasung bietet er räumliche Behaglichkeit und trotz massiver Konstruktionsteile
zeigt er eine schwebend anmutende Leichtigkeit. Der Neubau steht mit
dem Altbau, dessen architektonischer Habitus respektiert wird, in
einem spannungsvollen Dialog und gewinnt als eine Art begeh- und bewohnbarer
dreidimensionaler Malerei eine eigenständige Figur.
Fotos: Dorfmüller + Kröger
|