|
FACHSPEDITION HOYER
HAMBURG
ERWEITERUNGSBAU EINES
VERWALTUNGSGEBÄUDES
 |
 |
| BAUHERR: |
Friedl Hoyer |
| BAUJAHR: |
1985 - 1987 |
| STANDORT: |
Wendenstraße 420, 20537 Hamburg |
Die Fachspedition Hoyer ist
ein im Logistikservice für chemische Produkte tätiges Unternehmen,
das seit 1946 im Hamburger Stadtteil Hamm-Süd ansässig ist. Um
einige bislang ausgelagerte Abteilungen der Verwaltung
zusammenzuführen wurde ein Erweiterungsbau errichtet, der ein
Bekenntnis zum Ort und damit zur Unternehmenstradition darstellt.
Zugleich sollte durch die räumliche Verknüpfung von Verwaltung und
LKW-Hof der enge funktionale Zusammenhang dieser beiden
Betriebsteile gestärkt werden.
 |
 |
 |
|
Isometrie |
|
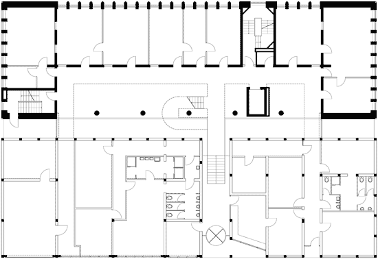
Grundriss Erdgeschoss |
Der Neubau nimmt die
Kubatur des vorhandenen Verwaltungsgebäudes auf, mit dem er durch
eine gemeinsame Halle verbunden ist. Vertikale Fensterbänder
zeichnen den Innenhof in der Fassade nach, die durch das
Treppenhaus rhythmisch gegliedert ist. Dabei erhält die mit
Betonwerksteinen verkleidete Lochfassade durch ihre bewußte
Proportionierung eine spannungsvolle Wirkung. Über der
Fahrstuhlüberfahrt ist das Firmensignet plaziert, das der strengen
Figur des Bürohauses einen prägnanten Akzent verleiht.
Als Atrium mit Wassergraben
und Pflanzen gestaltet, bildet der Innenhof einen Gegenentwurf zur
Profanität des umgebenden Gewerbegebiets. Auch das Gebäudeinnere
ist vom hellgrauen Betonwerkstein geprägt, dessen Farbton mit den
roten Kacheln des Fußbodenbelags kontrastiert und so das
charakteristische Farbspektrum der Firma aufnimmt. Die
unprätentiöse, abstrakte Gestaltung des Bürohauses erinnert an die
rationalistische Struktur eines Containers und entspricht damit
den Bedingungen des Ortes.
Mit seiner konsequenten Schlichtheit schafft der Neubau einen
neuen räumlichen Schwerpunkt innerhalb des diffusen baulichen
Umfeldes. Durch die räumliche Verbindung von Verwaltungs- und
Sozialräumen werden neue Berührungspunkte zwischen den
verschiedenen Betriebsbereichen geschaffen. So verbindet der
Neubau die organisatorische Neugliederung des Betriebsgeländes mit
einer qualitativen Aufwertung des räumlichen Kontextes und
entwickelt mit seiner kraftvollen Rationalität eine
identitätsstiftende Wirkung.
Fotos: Bernhard Hirche, Oliver Heissner |