|
GFA-HOLDING HAMBURG
ERWEITERUNGSBAU EINES
VERWALTUNGSGEBÄUDES
 |
 |
| BAUHERR: |
Bürohaus Eulenkrug GbR |
| BAUJAHR: |
1999 - 2000 |
| STANDORT: |
Foßredder 4, 22359 Hamburg |
Aufgrund der Expansion
entschieden sich die Consulting Firmen der GFA Holding für einen
Erweiterungsbau. Der Neubau reagiert bewußt nicht auf die
vorhandene 70 er Jahre - Architektur. Eine verglaste Fuge dient
als Haupteingang und Vertikalerschließung. Zugleich trennt sie den
als aufgelösten Stahlskelettbau ausgebildeten Neubau mit der
verglasten Fassade und seinem Flachdach vom Altbau ab.

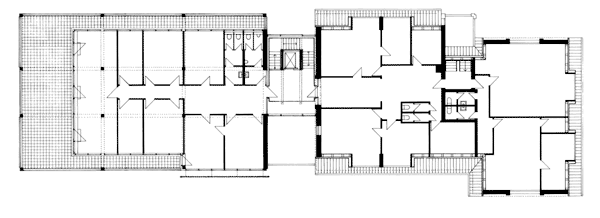
Grundriss Obergeschoss
Um eine stärkere
Differenzierung und Gliederung zu ermöglichen und eine gewisse
Kleinteiligkeit in der Fassade zu schaffen, ohne jedoch auf den
flexiblen Grundriß mit gleicher Büronutzung im Innenraum reagieren
zu müssen, wurde vor einen Teil der eigentlichen Neubaufassade ein
Vorhang aus Edelstahlgittergewebe mit integriertem Firmensignet
gehängt. Das Gebäude sollte leicht und transparent ausgebildet
werden. Aus diesem Grund wurde das Gebäude vollständig mit in die
Isolierverglasung integriertem Lamallen-Sonnenschutz und
außenliegendem Sonnenschutz vor den Öffnungsflügeln versehen. So
konnte auf den Baumbestand reagiert werden.

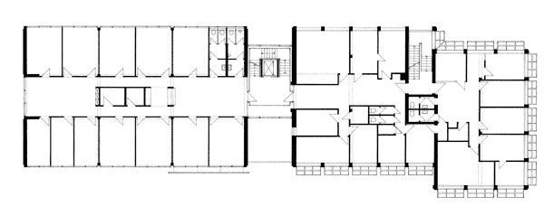
Grundriss Staffelgeschoss
Zur Aussteifung notwendige
Querwände, aber ebenso das die Fassade gliedernde
Stahlbetonskelett, sind mit hinterlüfteten Faserzementplatten
verkleidet. Im Staffelgeschoß bildet das Skelett eine räumlich
gefaßte Terrasse vor der Kantine. Durch den tiefen Grundriß ergibt
sich eine Dreiteiligkeit. Hier wird die Mittelzone für
Besprechungen durch eine Pantry, einen Computer- und einen
Kopierraum genutzt. Zur Belichtung der Mittelzone und zur
Förderung der Kommunikation der Mitarbeiter befindet sich in jeder
zweiten Achse sich ein Glaselement, bzw. eine Glastür.
Die Stahlbetonkonstruktion
ist im Inneren einschließlich der Decke sichtbar. Lediglich frei
darunter gehängte weiße Akustiksegel und Reflektoren für die
indirekte Beleuchtung gliedern die Decke im Raster der
Ausbauachsen. Auch im Treppenhaus werden die Materialien in ihrem
Rohzustand belassen, um eine technischen Charakter zu schaffen und
sich deutlich vom Altbau abzugrenzen. So besteht die Treppe in der
Fuge aus einer Stahlkonstruktion mit dazwischen gehängten
Gitterrosten, die Wangen des durchsichtigen Fahrstuhls aus
Sichtbeton, der Fußboden der Eingangshalle aus beschichtetem
Estrich.
Dem Grauton des Rohbetons
angepasst, sind alle Ausbauwände aus Gipskarton in lichtem grau
gestrichen und die Böden mit grauem Nadelfilz belegt. Roten
Küchenbereiche lockern das Farbbild im Gebäudeinneren auf.
Durch seinen technischen
und konstruktiven Charakter im Inneren und Äußeren des Gebäudes
wird ein einheitliches und harmonisches Gesamtbild geschaffen, das
sich eindeutig von dem Altbau abgrenzt und bewusst von der
Umgebung unterscheidet.
Fotos: Dorfmüller + Kröger |