|
KIRCHZENTRUM ST.
JOHANNES NEPOMUK TAUNUSSTEIN
NEUBAU EINES KATHOLISCHEN
KIRCHENZENTRUMS
 |
 |
| BAUHERR: |
Kath. Kirchengemeinde St. Johannes
Nepomuk |
| BAUJAHR: |
1989 – 1991 |
| STANDORT: |
Aarstraße 140, 65232 Taunusstein |
Im Oktober 1971 wurden
sechs Taunusgemeinden im Rheingau-Taunus-Kreis nördlich von
Wiesbaden zur Stadt Taunusstein zusammengefasst. Sie ist heute mit
rund 30.000 Einwohnern die größte Stadt des Landkreises. Da die
ehemaligen dörflichen Gemeinden ihre räumliche Identität
weitgehend verloren haben, wurde im Ortsteil Hahn ein neues
Stadtzentrum angelegt, um einen neuen kommunalen Mittelpunkt zu
schaffen. Diese Planung umfasst die gesamträumliche Gliederung des
Gebiets bis zur Gestaltung der Platzanlage.
 |
 |
 |
|
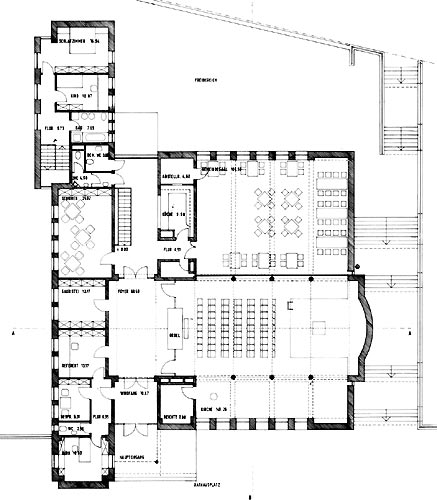
Grundriss Erdgeschoss |
|
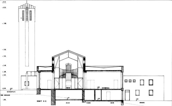
Querschnitt Kirchraum /
Gemeindesaal |
Der städtebauliche Entwurf
Taunusstein Mitte sah die Bündelung der Stadtfunktionen Kultur,
Kirche und öffentliche Verwaltung an einem gemeinschaftlichen
Platz vor. Neben dem Umbau der Gaststätte „Zum Taunus“ zum
Bürgerhaus bilden Neubauten für das Rathaus und die
Kirchengemeinde St. Johannes Nepomuk die Raumkanten eines
dreiseitig gefassten Platzbereichs. Nördlich grenzt der Grünzug
des Aartals an, der bewahrt und als öffentlicher Park in die
Zentrumsplanung eingebunden werden soll.
Die Gestaltung des
Platzbereichs ist auf die angrenzenden Neubauten ausgerichtet und
stellt einen räumlichen Bezug der einzelnen Bausteine
untereinander her. Durch die geometrische Gliederung der
Platzfläche wird eine klare Wegeführung geschaffen, die den Platz
in mehrere Teilbereiche differenziert. Ein Brunnen fokussiert die
verschiedenen Raumzonen und schafft eine gemeinsame Mitte. Der
Brunnen besteht aus einem flachen, länglichen Wasserbecken mit
einem Findlingsstein aus dem Taunus als Wasserspender.
Während die Hochbauplanungen für das Stadtzentrum Taunusstein
Mitte weitgehend umgesetzt wurden, hat das freiraumplanerische
Konzept nur teilweise Berücksichtigung gefunden. Belebt durch die
verschiedenen öffentlichen Funktionen der umgebenden Bauten und
geprägt von seiner räumlich vielschichtigen Gestaltung, definiert
der Platzraum eine neue Ortsmitte. Die junge Stadt Taunusstein hat
damit ein kommunales und räumliches Zentrum erhalten sowie eine
eigenständige bauliche Identität gewonnen.
Fotos: Jutta Brüdern |