|
MOSCHEE SCHWÄBISCH GMÜND
UMBAU EINES BAUMARKTES ZU EINER MOSCHEE
 |
 |
| AUSLOBER: |
Türkisch Islamische Gemeinde Schwäbisch
Gmünd |
| JAHR: |
2007 |
| ERGEBNIS: |
3. Preis |
Ziel des Entwurfes ist es,
einerseits die vorhandenen räumlichen Ressourcen mit möglichst geringen
Eingriffen zu nutzen, andererseits den ehemaligen Baumarkt derart
zu transformieren, daß verborgene strukturelle Qualitäten herausgearbeitet
und eine erkennbare Moschee mit Gemeinderäumen und Basar geschaffen
wird, die eine hohe Identifikationskraft ausstrahlt.



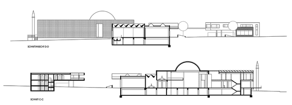
Ansicht Nord, West & Süd
 
Schnitt C-C & D-D
Bezüge zum Ort werden über
die Maßstäblichkeit, Aufnahme von Baufluchten und Höhenentwicklungen
sowie die Weiterführung der öffentlichen Wege in und durch den Gebäudekomplex
geschaffen. Die Wohnungen werden in einem separaten Gebäude im nördlichen
Grundstücksteil angeordnet und mit einem überdeckten Gang an die Moschee
angebunden. Das Wohngebäude mit der Arkade schließt den Straßenraum,
lässt aber Einblicke in das Grundstück und den nördlich dem Basar
vorgelagerten Außenbereich zu. Dort liegen ein Spielplatz und ein
Veranstaltungsplatz mit Außenbühne und Bühnennebenraum.
|